ДжиСиМед «Стоматология»
Передвижной стоматологический кабинет ДжиСиМед «Стоматология»
Цена по запросу

Передвижной стоматологический кабинет ДжиСиМед «Стоматология»

ДжиСиМед «Стоматология»
Передвижной стоматологический кабинет ДжиСиМед «Стоматология»

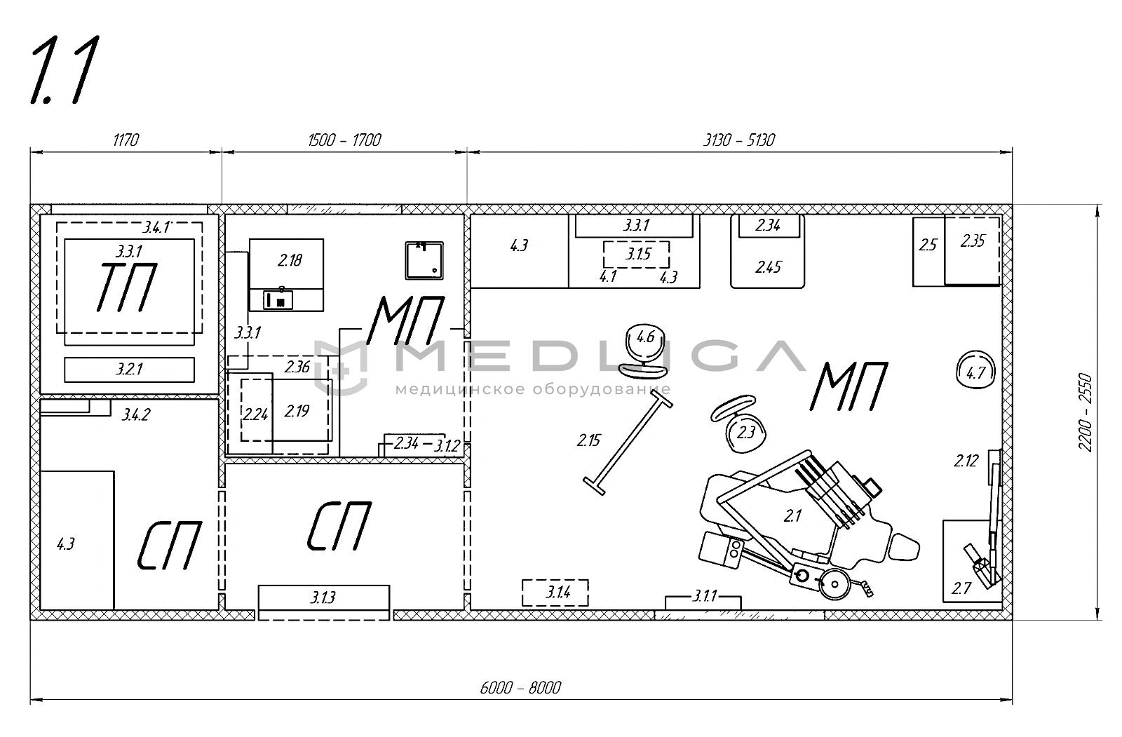
Передвижной стоматологический кабинет предназначен для оказания первичной медико-санитарной стоматологической помощи населению труднодоступных и удаленных районов. В условиях передвижной стоматологии возможно выполнение рентгенологических исследований с использованием дентального рентгеновского аппарата с цифровым приемником изображения (радиовизиографом) и целого ряда специальных лечебных мероприятий, позволяющих прекратить развитие воспалительного процесса, восстановить все полезные функции, а также эстетику зубной единицы.

Описание

ередвижной стоматологический кабинет выпускается в обращение на основании регистрационного удостоверения № ФСР 2011/10126. МЛПМ «Стоматология» изготавливается на базе многосекционного изотермического фургона на шасси транспортного средства — прицепа, грузового автомобиля, в том числе внедорожного, полноприводного. Все отсеки комплекса имеют эргономичные рабочие места, оснащенные соответствующим медицинским оборудованием, мебелью и системами жизнеобеспечения. Технические характеристики и комплектация комплекса обеспечивают оказание выездной стоматологической помощи в любых климатических и географических условиях в полном соответствии с требованиями нормативных документов МЗ РФ.

Системы жизнеобеспечения

Мобильный стоматологический комплекс оснащен автономным генератором, климат-контролем, состоящим из приточно-вытяжной вентиляции, моноблока или мультисплит системы кондиционирования, конвекционными обогревателями и воздушной завесой. Во время перемещения комплекса отопление помещений осуществляется автономным воздушным отопителем на дизельном топливе. Рабочее место стоматолога оснащено автоматизированным рабочим местом с доступом в сеть Internet.

Источники питания:

  • Сеть 220 В/50 Гц
  • Генератор
  • Инвертор

Освещение:

  • Основное (220 В ) обеспечивается светодиодными светильниками, установленными на потолке в каждом отсеке.
  • Аварийное (12/24 В) - обеспечивается светильниками меньшей мощности, установленными в каждом отсеке.

Отопление:

  • Тепловая завеса над входной дверью.
  • Конвекционные обогреватели в каждом отсеке.
  • Автономный воздушный отопитель.

Вентиляция и кондиционирование:

  • Приточная фильтровентиляционная установка.
  • Вытяжные вентиляторы.
  • Мульти-сплит система (охлаждение, вентиляция, обогрев).

Санитарное оснащение:

  • Система водоснабжения.
  • Биотуалет.

Противопожарное оснащение:

  • Датчики-детекторы дыма со звуковыми извещателями.
  • Огнетушители.

Медицинское оснащение

Передвижной рентгендиагностический кабинет оснащается в соответствии с приказом МЗ РФ № 560н от 9 июня 2020 г. К размещению внутри рентгендиагностического комплекса доступны самые современные цифровые маммографические аппараты (в том числе с функцией томосинтеза) и флюорографические аппараты ведущих российских производителей.

Характеристики
Страна изготовления
Россия
Вид оборудования
Передвижной медицинский комплекс
Несущее шасси
  • ГАЗ ,
  • КАМАЗ ,
  • Прицеп
Тип оборудования
Стоматологический кабинет
Цена по запросу
Сервис
Лизинг
Гарантии
Преимущества